MENU
DPJ Group
DPJ Consultants
DPJ Construction
About Us
Contact
01622 587 060
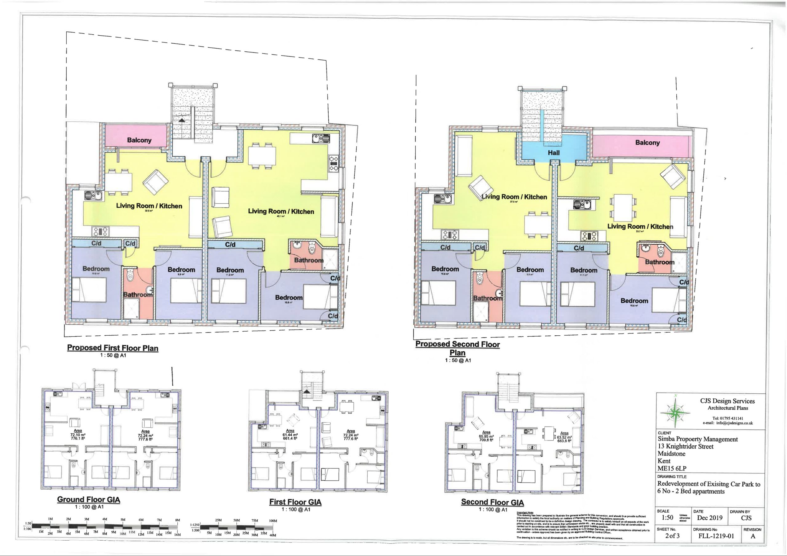
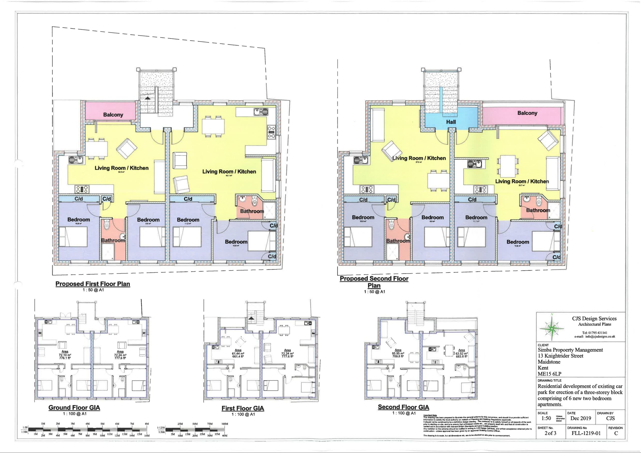
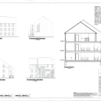
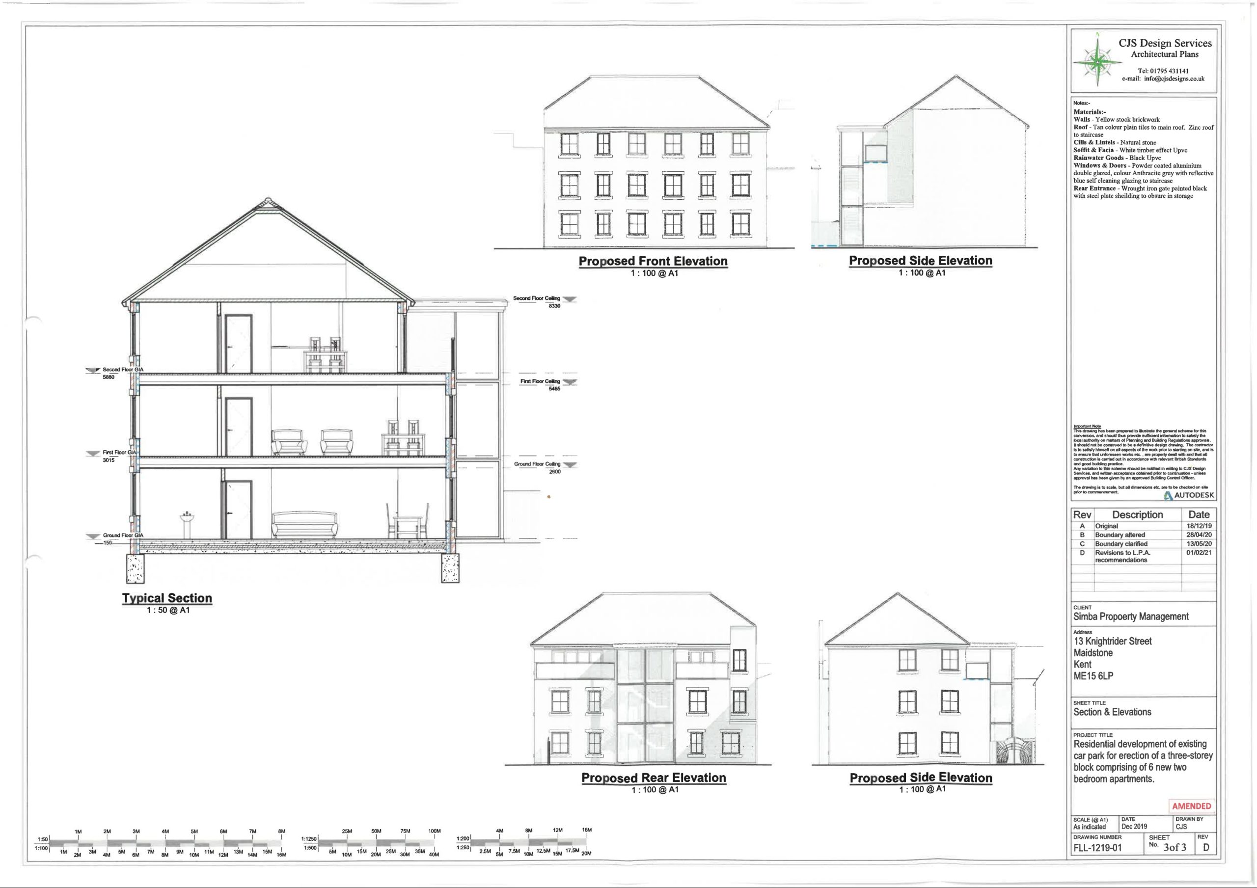
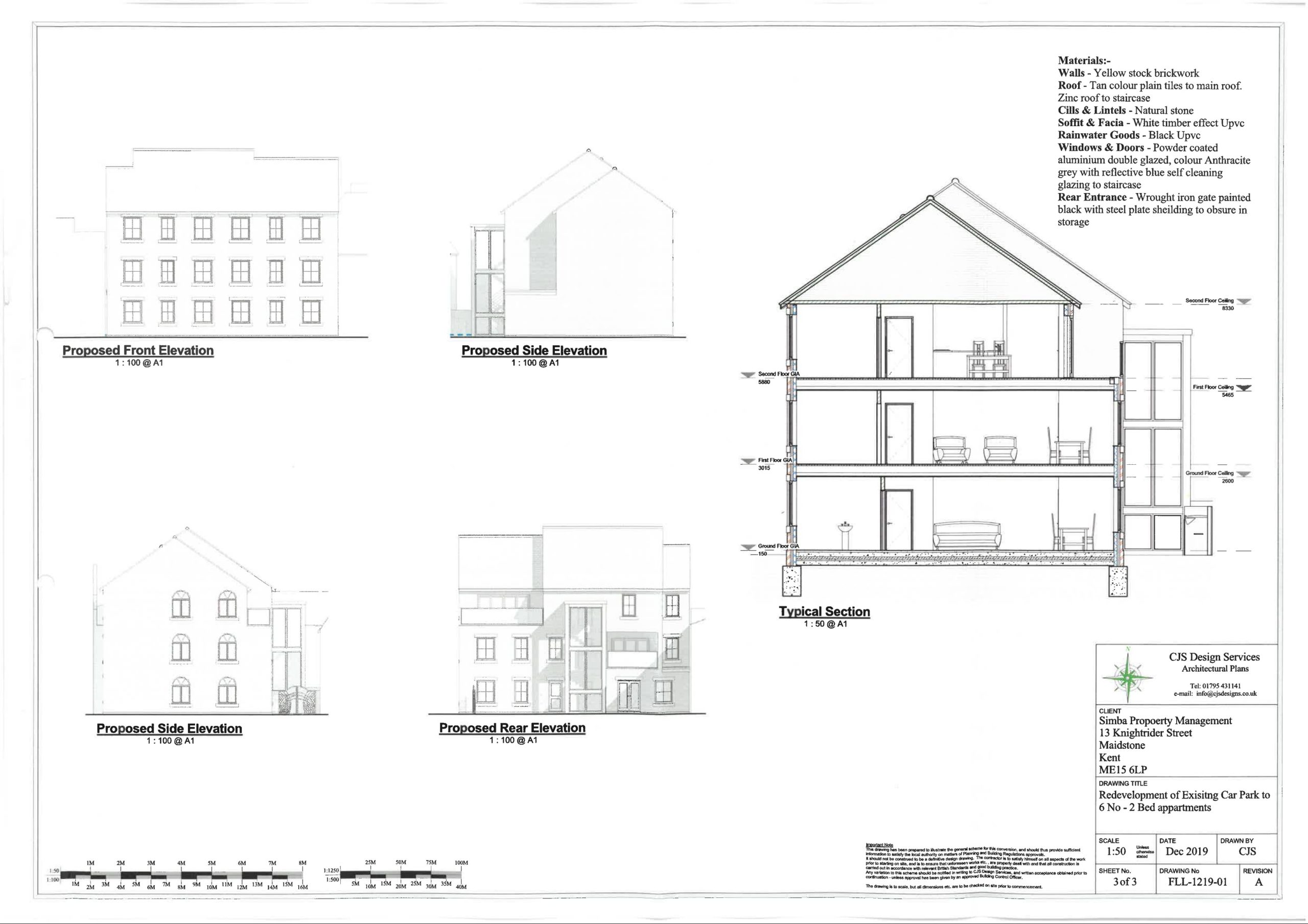
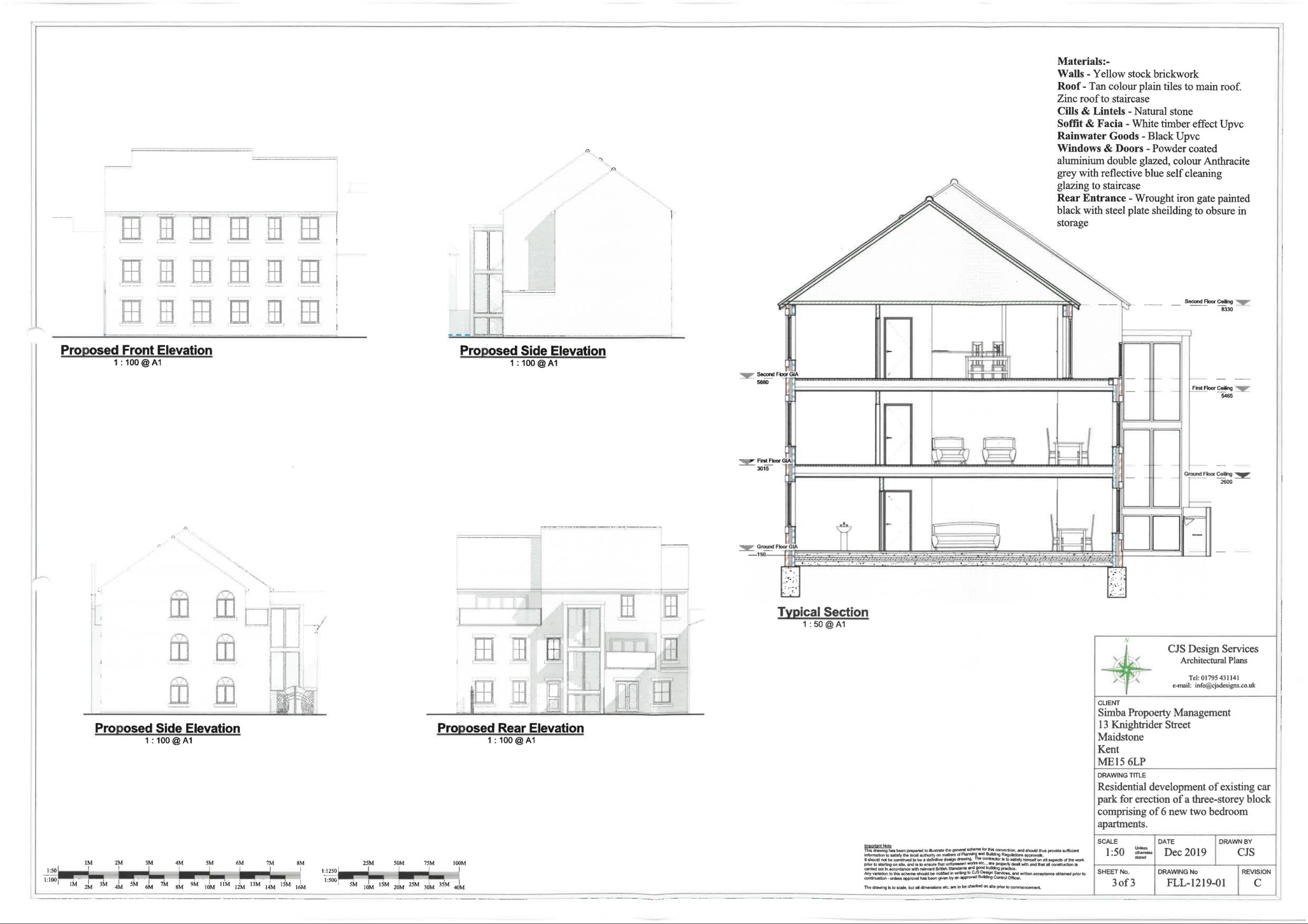
Knightrider Street
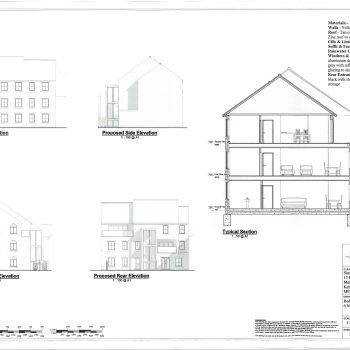
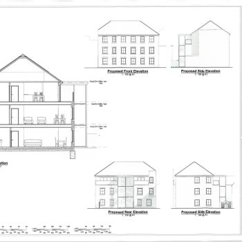
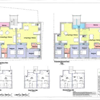
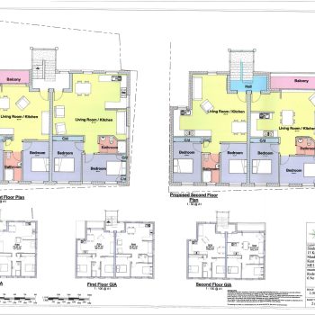
Blueprints: